BLOOMBERG WASHINGTON DC

Charlie Rose Broadcast Studio

Bloomberg Washington D.C. Headquarters
A fast-paced, high-density media environment with an emphasis on promoting the firm’s ethos and culture located in Washington DC.

Project Area: 42,000 SF.

Roles and Responsibilities: Architectural designer working directly with firm leadership and directors from schematic design through construction administration.

Project completed: 2017

In collaboration with LSM (Architecture and Interiors), WSP (MEP), FMS (Lighting), Tadjer-Cohen-Edelson (Stuctural), Cerami (Acoustics), Sustainable Building Partners (LEED), Maxus (IT/AV/Security), Communications Engineering Inc. (Broadcast), FDS (Food Service Design).

Photography: Hedrich Blessing & Mark Andre

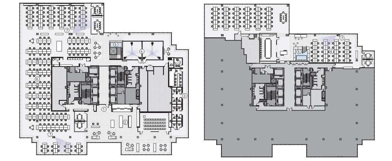
left: level 09 | right: level 08

1. Entry Portal
2. Pantry
3. Radio Broadcast
4. Video Broadcast
5. Fish Tank
6. Newsroom
7. Newsroom Broadcast Station


Project Photography

NEXT
Back
Personal Explorations